Descrizione
Spazioso appartamento con soppalco e vista panoramica
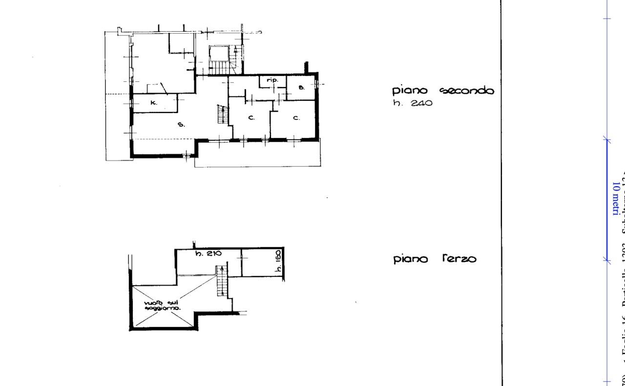
In frazione Grande Golette, a breve distanza dalle piste da sci, proponiamo in vendita un ampio appartamento al secondo piano con comodo soppalco, ideale come per chi è alla ricerca di un’ampia dimora in montagna.
L'alloggio si compone di:
- luminoso e ampio soggiorno con grande camino a legna, perfetto per creare un'atmosfera calda e accogliente, soffitto in legno con travi a vista
- zona pranzo
- cucinino attrezzato
- bagno finestrato con vasca
- bagno con doccia
- camera da letto con letti singoli
- camera matrimoniale
- spazioso soppalco, ideale come salotto aggiuntivo o zona notte supplementare
- due terrazzi esposti a sud e ovest con una splendida vista sul ghiacciaio del Ruitor.
Completano l’offerta:
- cantina
- box auto
- parcheggio condominiale esterno disponibile fronte casa
La casa è dotata di ascensore.
L’appartamento viene venduto completamente arredato, pronto per essere abitato sin da subito.
Il riscaldamento è allacciato alla rete di teleriscaldamento, soluzione pratica ed efficiente.
All’interno del Complesso sono presenti un campo da tennis e un ampio giardino condominiale con area attrezzata; durante la bella stagione è possibile accedere direttamente all’antica strada romana pedonale che conduce al centro del paese.
Una proposta ideale per chi desidera una dimora ampia, confortevole e immersa nella tranquillità della montagna.
Contattaci per organizzare una visita: siamo disponibili tutti i giorni per accompagnarti alla scoperta di questa splendida soluzione.
Dettagli immobile
-
Contratto:
Vendita -
Categoria immobile:
Quadrilocale -
Condizione immobile:
Buono/Abitabile -
Regione:
VALLE D'AOSTA -
Città:
LA THUILE -
Superficie:
114 mq² -
Locali:
4 -
Bagni:
2 -
Camere da letto:
3 -
Piano:
SECONDO E SOPPALCO -
Anno di costruzione:
1977 -
Riscaldamento:
Teleriscaldamento -
Classe Efficienza energetica (EPgl):
G -
Spese condominiali annue:
€ 3845 -
Prezzo di vendita:
€ 540000
Servizi interni
Servizi esterni
Distanze
-
Medico:
900 m -
Farmacia:
900 m -
Fermata navetta:
30 m -
Piazzale autobus:
800 m -
Ricarica auto elettriche:
50 m -
Benzinaio:
1000 m -
Alimentari:
900 m -
Supermercato:
900 m -
Ristorante:
500 m -
Bar:
500 m -
Partenza funivia:
900 m -
Piste da fondo:
1200 m
Planimetria - Progetto

Immobili simili
€360.000
VenditaGRAZIOSO CON AREA ESTERNA
frazione Petite Golette n.1
- 1 Bagni
- 1 Camere da letto
- 67 Superficie
€571.150
VenditaNuova costruzione in montagna
LA THUILE FRAZIONE PERA CARA
- 2 Bagni
- 2 Camere da letto
- 137 Superficie
€640.000
VenditaVILLA INDIPENDENTE
FRAZIONE Faubourg LA THUILE
- 2 Bagni
- 1 Camere da letto
- 130 Superficie
italiano
english