Descrizione
OPERAZIONE IMMOBILIARE – CIELO-TERRA NEL CUORE DI LA THUILE
Nel suggestivo centro storico di La Thuile, una delle località alpine più rinomate, proponiamo in vendita un intero fabbricato cielo-terra da riqualificare, situato in Via Paolo De Bernard n. 12.
Un’opportunità rara e di grande valore, rivolta ad imprese ed a sviluppatori alla ricerca di un’operazione immobiliare ad alto potenziale.
L’immobile, di circa 600 mq, si presta perfettamente alla realizzazione di residenze di charme in stile montano, con la possibilità di valorizzare al massimo le caratteristiche architettoniche tipiche del borgo.
Plus strategici dell’operazione:
-Posizione centralissima nel cuore del borgo antico
-A pochi passi da servizi, impianti e piste da sci
-Possibilità di ampliamento volumetrico tramite Piano Casa
-Contesto di forte attrattività turistica e immobiliare
-Assenza di vincoli (ad eccezione del vincolo paesaggistico, esteso a tutto il territorio)
Un investimento concreto in una località dove la domanda è elevata e l’offerta di operazioni simili è estremamente limitata.
Prezzo richiesto: € 850.000
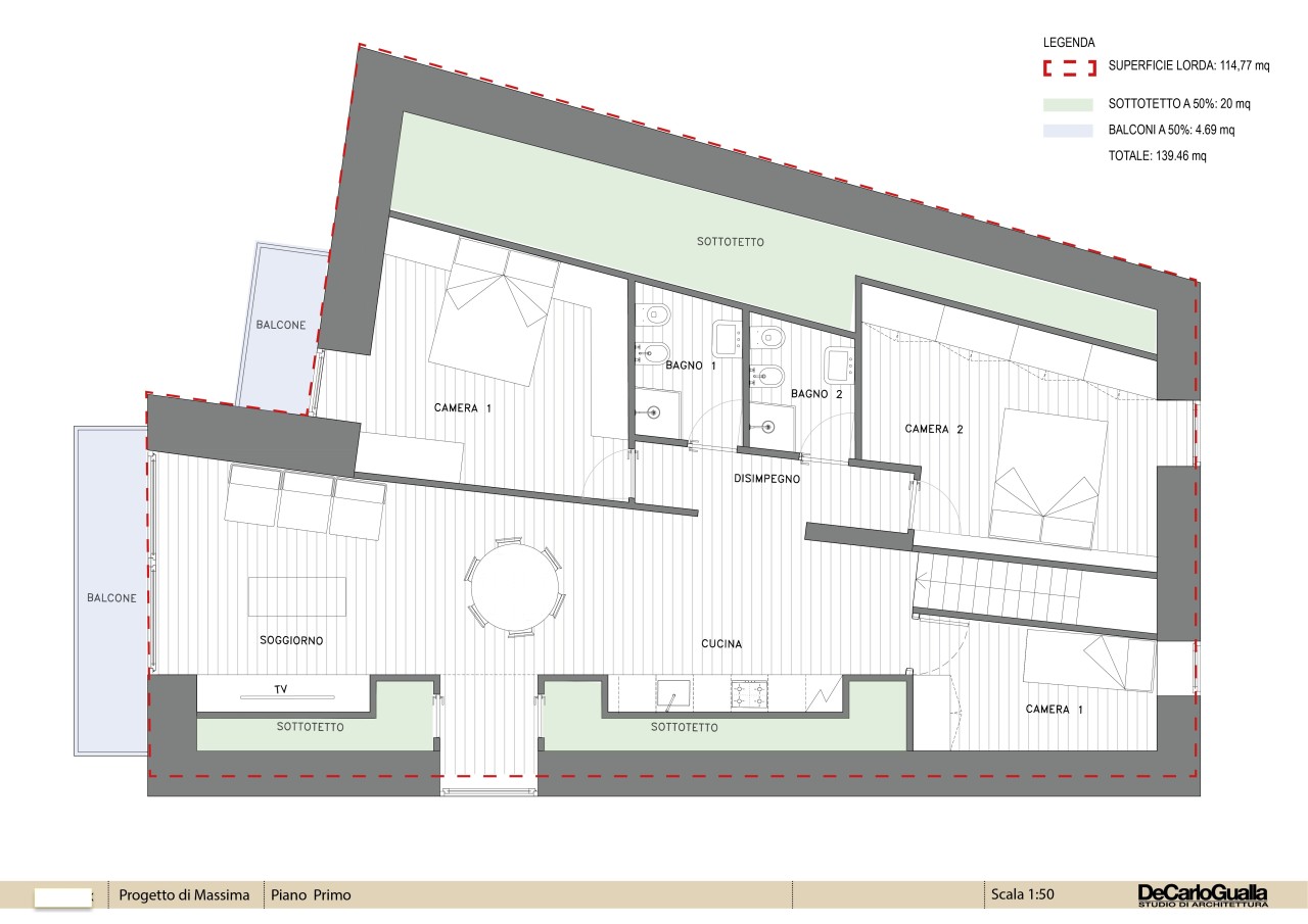
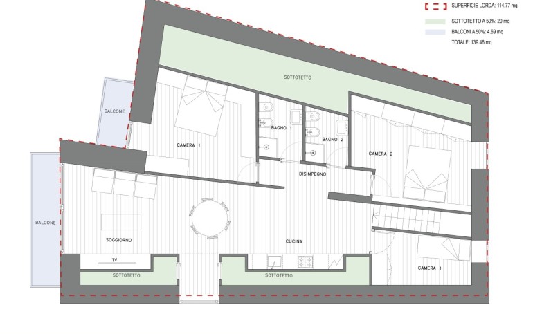
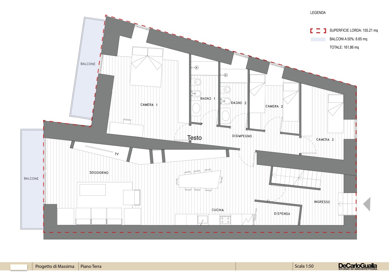
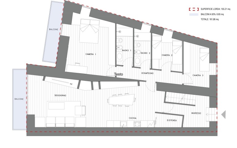
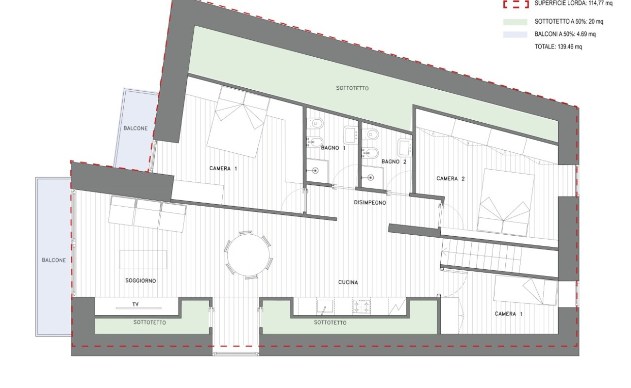
E’ disponibile un progetto di massima che sviluppa la realizzazione di n. 4 alloggi dai 150 ai 170 mq ciascuno.
Per ogni ulteriore informazione o per fissare un appuntamento con il referente del progetto contattami al 340 0967029 (Paola Fioravanzo)
Dettagli immobile
-
Contratto:
Vendita -
Condizione immobile:
Ristrutturabile -
Regione:
VALLE D'AOSTA -
Città:
LA THUILE -
Superficie:
600 mq² -
Anno di costruzione:
1800 -
Prezzo di vendita:
€ 850000
Distanze
-
Medico:
50 m -
Farmacia:
50 m -
Fermata navetta:
50 m -
Piazzale autobus:
50 m -
Ricarica auto elettriche:
50 m -
Benzinaio:
100 m -
Alimentari:
50 m -
Supermercato:
50 m -
Ristorante:
50 m -
Bar:
50 m -
Partenza funivia:
250 m -
Piste da fondo:
250 m
Planimetria - Progetto
.jpeg)
Immobili simili
€460.000
VenditaAlloggio -Complesso Planibel
Frazione Entreves
- 2 Bagni
- 2 Camere da letto
- 62 Superficie
€570.000
VenditaCARATTERISTICO A PONT SERRAND
Pont Serrand
- 2 Bagni
- 2 Camere da letto
- 175 Superficie
€480.000
VenditaOTTIMA OPPORTUNITÀ
frazione grande golette 58
- 2 Bagni
- 2 Camere da letto
- 100 Superficie
italiano
english