Descrizione
OPEN SPACE CON SOPPALCO IN LOCALITÀ ARLY
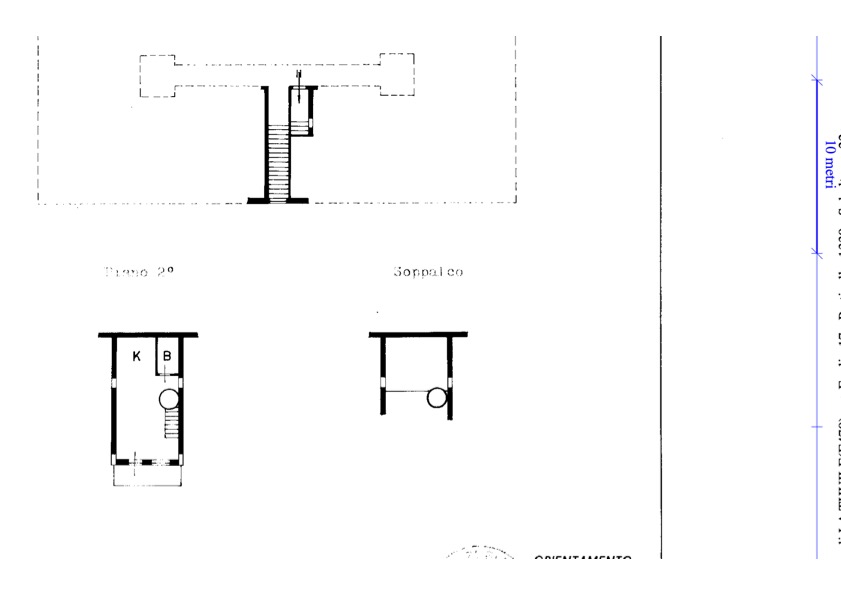
In Località Arly, in posizione strategica comoda agli impianti di risalita, di fronte alla pista di sci di fondo e vicina ai principali servizi commerciali, proponiamo in vendita un accogliente open space situato al secondo piano con soppalco.
Soluzione ideale sia come caratteristica dimora in montagna sia come investimento immobiliare per la messa a reddito.
L’alloggio è così composto:
- Ingresso a piano primo e scala di accesso alla zona living a piano secondo
- soggiorno con zona pranzo
- angolo cottura pratico e ben organizzato
- bagno con doccia
- soppalco adibito a zona notte
- balcone con vista panoramica sulle montagne
Completano la proprietà, al piano seminterrato, un box auto e un armadietto ski-box, dotazioni fondamentali per vivere la casa con comodità in ogni stagione.
Disponibile inoltre un posto auto esterno condominiale.
Il riscaldamento è collegato alla rete di teleriscaldamento, soluzione efficiente e a basso impatto gestionale.
L’immobile viene venduto completamente arredato ed è già organizzato per 4 posti letto.
Una proposta imperdibile per chi cerca un ambiente caldo e funzionale in montagna, perfetto sia per l’inverno che per le vacanze estive.
Contattaci al più presto siamo disponibili tutti i giorni della settimana per organizzare una visita.
Dettagli immobile
-
Contratto:
Vendita -
Categoria immobile:
Bilocale -
Condizione immobile:
Buono/Abitabile -
Regione:
Valle d'Aosta -
Città:
La Thuile -
Superficie:
44 mq² -
Locali:
2 -
Bagni:
1 -
Camere da letto:
1 -
Piano:
2° -
Anno di costruzione:
1980 -
Riscaldamento:
Teleriscaldamento -
Classe Efficienza energetica (EPgl):
C -
Indice Prestazione Energetica (IPE):
144 kWh/m², anno -
Spese condominiali annue:
€ 1220 -
Prezzo di vendita:
€ 230000
Servizi interni
Servizi esterni
Distanze
-
Medico:
500 m -
Farmacia:
500 m -
Fermata navetta:
30 m -
Piazzale autobus:
500 m -
Ricarica auto elettriche:
50 m -
Benzinaio:
600 m -
Alimentari:
600 m -
Supermercato:
600 m -
Ristorante:
70 m -
Bar:
70 m -
Partenza funivia:
150 m -
Piste da fondo:
30 m
Planimetria - Progetto

Immobili simili
€280.000
VenditaDELIZIOSA MANSARDA OPEN SPACE
frazione petite Golette 1
- 1 Bagni
- - Camere da letto
- 50 Superficie
€300.000
VenditaGRAZIOSA MANSARDA
frrazione Petite Golette n 1
- 1 Bagni
- - Camere da letto
- 53 Superficie
€155.000
VenditaOpen space in zona centrale
Via Marcello Collomb
- 1 Bagni
- 1 Camere da letto
- 38 Superficie
€240.000
VenditaRIFUGIO DI CHARME VICINO PISTE
FRAZIONE PONT SERRAND
- 1 Bagni
- 1 Camere da letto
- 58 Superficie
italiano
english