Descrizione
Mansarda Open Space con doppi balconi
A pochi minuti dagli impianti di risalita e dai principali servizi, proponiamo in vendita una graziosa mansarda open space, perfetta come seconda casa o come opportunità di investimento da mettere a reddito.
L’alloggio si presenta così composto:
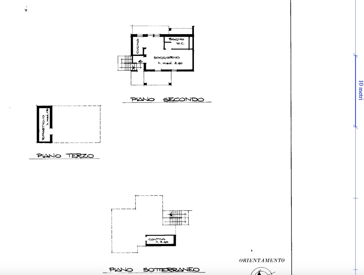
- Soggiorno/zona notte, unico ambiente;
- Accogliente zona pranzo;
- Angolo cottura;
- Bagno
- Ripostiglio
- Due ampi balconi esposti sud ed ovest
Completano la proprietà:
- Cantina funzionale
- Box auto
- Posto auto esterno condominiale
Il riscaldamento è collegato alla rete di teleriscaldamento, una soluzione moderna, efficiente e comoda in ogni stagione.
Questa mansarda rappresenta un’occasione ideale per chi è alla ricerca di un piccolo e affascinante rifugio alpino, fruibile sia in inverno sia nei mesi estivi.
Contattaci per maggiori informazioni o per organizzare una visita: siamo disponibili tutti i giorni della settimana.
Dettagli immobile
-
Contratto:
Vendita -
Categoria immobile:
Monolocale -
Condizione immobile:
Buono/Abitabile -
Regione:
VALLE D'AOSTA -
Città:
LA THUILE -
Superficie:
53 mq² -
Locali:
1 -
Bagni:
1 -
Piano:
2° -
Anno di costruzione:
1980 -
Riscaldamento:
Teleriscaldamento -
Classe Efficienza energetica (EPgl):
D -
Indice Prestazione Energetica (IPE):
144.77 kWh/m², anno -
Spese condominiali annue:
€ 1450 -
Prezzo di vendita:
€ 300000
Servizi interni
Servizi esterni
Distanze
-
Medico:
500 m -
Farmacia:
500 m -
Fermata navetta:
30 m -
Piazzale autobus:
500 m -
Ricarica auto elettriche:
500 m -
Benzinaio:
800 m -
Alimentari:
500 m -
Supermercato:
500 m -
Ristorante:
500 m -
Bar:
500 m -
Partenza funivia:
500 m -
Piste da fondo:
1000 m
Planimetria - Progetto
.jpg)
Immobili simili
€230.000
VenditaOPEN SPACE CON SOPPALCO
FRAZIONE ARLY LA THUILE
- 1 Bagni
- 1 Camere da letto
- 44 Superficie
€420.000
VenditaBELLISSIMO VICINO FUNIVIA
Frazione Entrèves
- 1 Bagni
- 1 Camere da letto
- 54 Superficie
€155.000
VenditaOpen space in zona centrale
Via Marcello Collomb
- 1 Bagni
- 1 Camere da letto
- 38 Superficie
€240.000
VenditaRIFUGIO DI CHARME VICINO PISTE
FRAZIONE PONT SERRAND
- 1 Bagni
- 1 Camere da letto
- 58 Superficie
italiano
english